Vue aérienne de l'emplacement du quartier Courtis II à la Chapelle-Saint-Florent

Quartier Les Courtis II

Tout savoir sur le quartier Les Courtis II à La Chapelle-Saint-Florent.

Suite à un appel à projet communal début 2023, Besnier aménagement a été retenu pour concevoir des projets d’habitat sur 4 communes déléguées de Mauges-sur-Loire :

  • « Saint-Maurille » à Saint-Florent-le-Vieil
  • « Les Courtis 2 » à La Chapelle-Saint-Florent
  • « Le Clos du Bourg » au Mesnil-en-Vallée
  • « Le Douet neuf » à La Pommeraye

Où en est le projet ?

Depuis début 2023, Besnier aménagement et la commune travaillent en partenariat sur la conception du quartier les Courtis II à La Chapelle St Florent.

Le permis d’aménager a été déposé en décembre 2023 et obtenu en avril 2024.

Une réunion publique de présentation a été organisée auprès des riverains le 6 juin 2023.

Travaux de viabilisation : 2nd semestre 2024

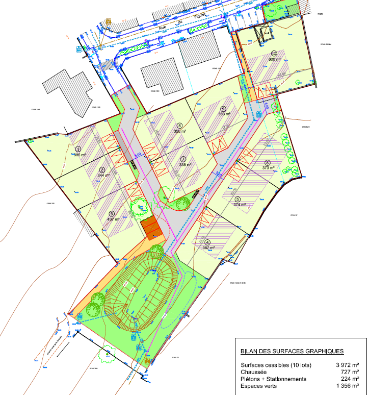
Plan du quartier Courtis II

À quoi va ressembler ce nouveau quartier ?

Accessible depuis la rue du figuier, à deux pas de la Mairie, ce nouveau quartier intime et de proximité prévoit des espaces paysagers conçus en partenariat avec les élus et les services, en préservant le bassin de gestion des eaux pluviales existant au Sud.

Il prévoit des voiries et cheminements incitant à la réduction de la vitesse des voitures et favorisant les mobilités douces.

Les Courtis II en quelques chiffres

10

lots libres

  • Une situation au cœur du centre bourg
  • Des lots de 338 m² à 600 m²

Si vous avez des questions, vous pouvez contacter Besnier aménagement :

M. Maurice POTROS

Responsable commercial

06 84 65 58 17

maurice.potros@besnier-amenagement.fr

Cette page a-t-elle répondu à vos attentes ?

300 caractères maximum

Si vous souhaitez être recontacté(e), merci d'utiliser notre formulaire de contact.

Merci pour votre aide à l'amélioration du site !